Loading...
Holiday House
Architecture

Holiday House

  • Year: 2019
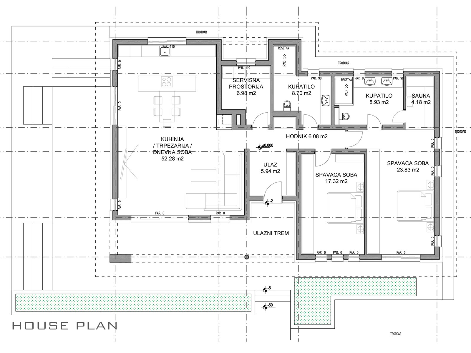
  • Area: 140 m2
  • Location: RS, Bosnia and Herzegovina
  • Intervention: Conceptual design
  • Phase: Completed

The Architectural solution to a mountain house was driven by the investor’s wish to make the house look simple and modest.  The idea behind this was to make one cost-effective house.

With this in mind, we have been considering two options, first being a one-story house and the second being a two-story house, of which we have put forward a solution to one story-house in a bid to make the house look as elegant as possible. The monotony has been broken by playfulness, as well as by the play of light and shadows on the facade – more specifically by covered, retracted and protruded parts accompanied by different materials/tones.

The façade has been conceived as a classical facade with strengthened thermal insulating performance, needed due to climatic conditions prevalent in this part of Bosnia and Herzegovina, and embellished with timber elements and segments of two different finishes - white and anthracite color - for the purpose of aesthetic connection with anthracite joinery and concrete tiles in the same tone.

Holiday House

Holiday House

Holiday House

Holiday House