Loading...
SPORT Stadl Hainburg
Restorani & Barovi

SPORT Stadl Hainburg

  • Godina: 2018
  • Površina: 180
  • Lokacija: Frankfurt, Nemačka
  • Intervencija: Idejno resenje, glavni projekat, kompletno individualno opremanje
  • Status: Realizovano

Nemačka je poznata po strasnim ljubiteljima sporta i piva te su sportski pab -ovi i bar -ovi neizostavan deo nemačke kulture, a mi smo se pozabavili dizajnom enterijera za jedan specifičan bar u Frankfurtu, opremivši ga komplento individualno i ručno radjenim nameštajem po našem projektu od strane naše fabrike Linea Milanovic.

Krenuli smo od želje investitora da u enterijeru bara bude dosta drveta ali da bude sveden, u skladu sa nemačkim mentalitetom, te je rešenje prilagodjeno početnim smernicama a osmišljeno u prijatnim, zemljanim tonovima, sa pirmenom dosta prirodnog drveta.

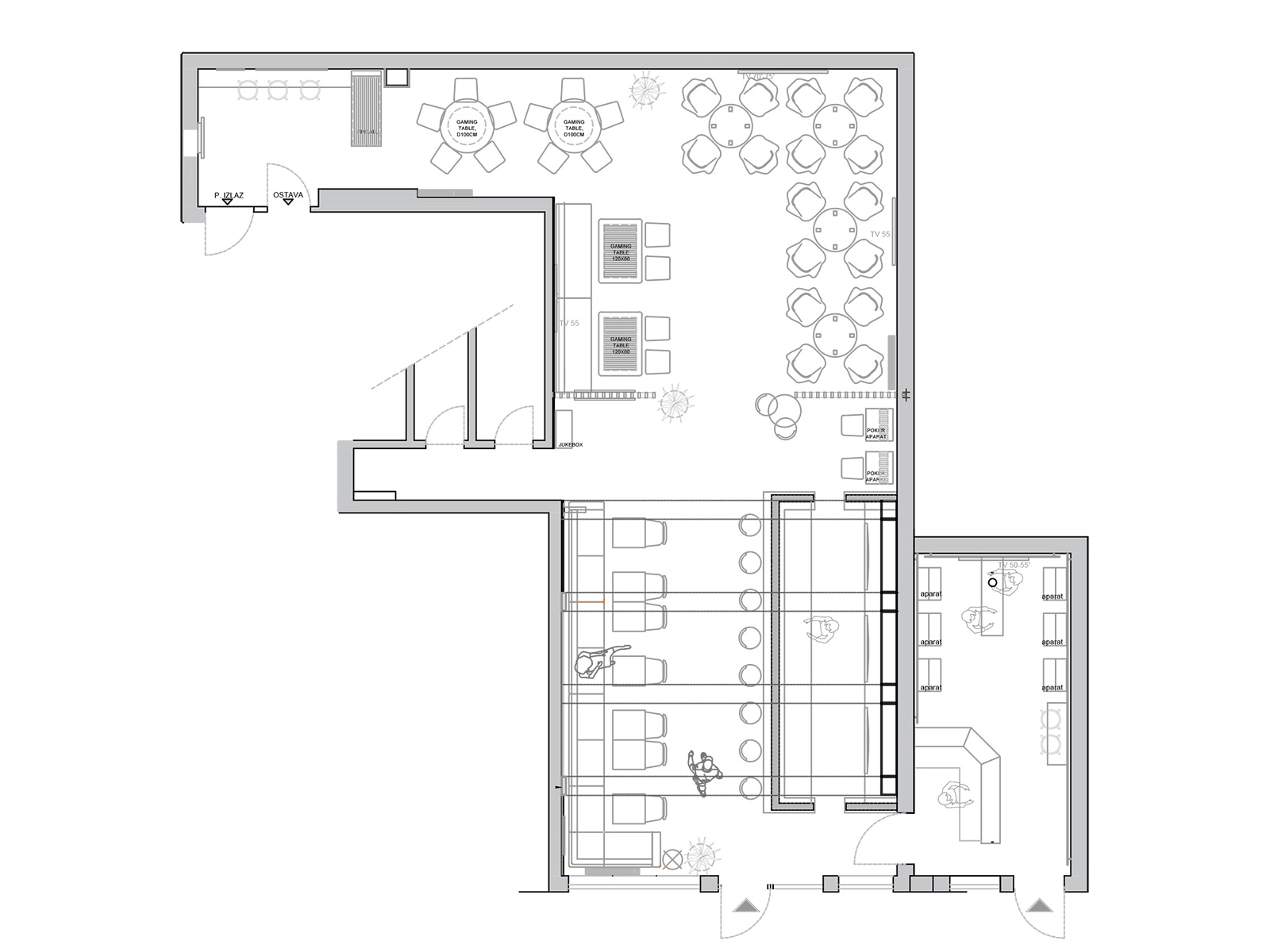
Funkcionalno gledano, porstor je podeljen u 2 dela ali 4 funkcionalne celine.

Prvi deo - pub, je zona za klasično opuštanje uz pivo, grickalice i sportski program. 2. deo je za komfornije praćenje sporta. 3. deo je zona za opuštanje uz društvene igre, aparate i interaktivne gaming i poker stolove sa touch ekranima i sl, dok je četvrti - poslednji deo, potpuno zasebna sportska kladionica nemačkog brenda HPYBET.

U svakom slučaju, osmišljavajući  enterijer pub-a, nismo mogli da u ovako tematskom prostoru ne nadjemo mesta za evergreen detalje i elemente kao što u fliper, pikado, jukebox i sl..

SPORT Stadl Hainburg

SPORT Stadl Hainburg

SPORT Stadl Hainburg

SPORT Stadl Hainburg

SPORT Stadl Hainburg

SPORT Stadl Hainburg

SPORT Stadl Hainburg

SPORT Stadl Hainburg

SPORT Stadl Hainburg

SPORT Stadl Hainburg

SPORT Stadl Hainburg

SPORT Stadl Hainburg

SPORT Stadl Hainburg

SPORT Stadl Hainburg

SPORT Stadl Hainburg